Trang Sản phẩm
Trong kiến trúc đương đại, việc đảm bảo độ chắc chắn và an toàn cho công trình là yếu tố cơ bản, nhưng chưa đủ. Người sử dụng ngày nay còn tìm kiếm những giải pháp mang lại sự tiện nghi, sang trọng và hiện đại.
Trong kiến trúc đương đại, việc đảm bảo độ chắc chắn và an toàn cho công trình là yếu tố cơ bản, nhưng chưa đủ. Người sử dụng ngày nay còn tìm kiếm những giải pháp mang lại sự tiện nghi, sang trọng và hiện đại.
Hãy thử hình dung một căn nhà mặt phố với hệ thống cửa gỗ truyền thống. Tuy chắc chắn, nhưng lại hạn chế tầm nhìn và ánh sáng tự nhiên. Điều này đặc biệt bất lợi đối với các cơ sở kinh doanh, bởi việc sử dụng vật liệu không xuyên sáng có thể làm giảm khả năng thu hút khách hàng và bỏ lỡ nhiều cơ hội kinh doanh quý giá.
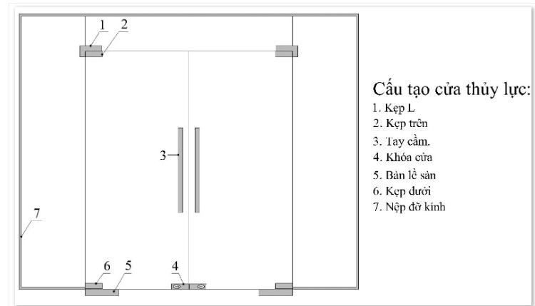
Trước đây, để khắc phục nhược điểm này, hệ cửa kính khung nhôm đã được ưa chuộng. Tuy nhiên, theo thời gian, hệ khung nhôm dần bộc lộ những hạn chế cần được cải thiện. Chính vì vậy, cửa thủy lực và các loại cửa tự động đã trở thành lựa chọn hàng đầu, đáp ứng hoàn hảo các yêu cầu về thẩm mỹ, công năng và độ bền.
Cửa thủy lực không chỉ mang lại tầm nhìn thông thoáng, tối đa hóa ánh sáng tự nhiên mà còn thể hiện sự sang trọng và chuyên nghiệp cho mọi không gian, đặc biệt là các mặt bằng kinh doanh.
.png)
Kiến tạo tương lai, vững bền cùng Cơ Khí Bách Khoa.
Cơ hội nghề nghiệp không giới hạn
tuyendung@cokhibachkhoa.com.vn